Mediocasa Immobiliare

Villa indipendente in costruzione a Meda

LOCALIZZAZIONE IMMOBILE

DESCRIZIONE

Meda al confine con Seveso, ville indipendenti in costruzione con giardino, in classe A+. All'avanguardia nella dotazione degli impianti, realizzate con uno sguardo attento verso l'architettura sostenibile, questo complesso residenziale è stato progettato in modo da garantire efficienza energetica e salubrità dei locali per raggiungere il meglio della qualità dell'abitare.
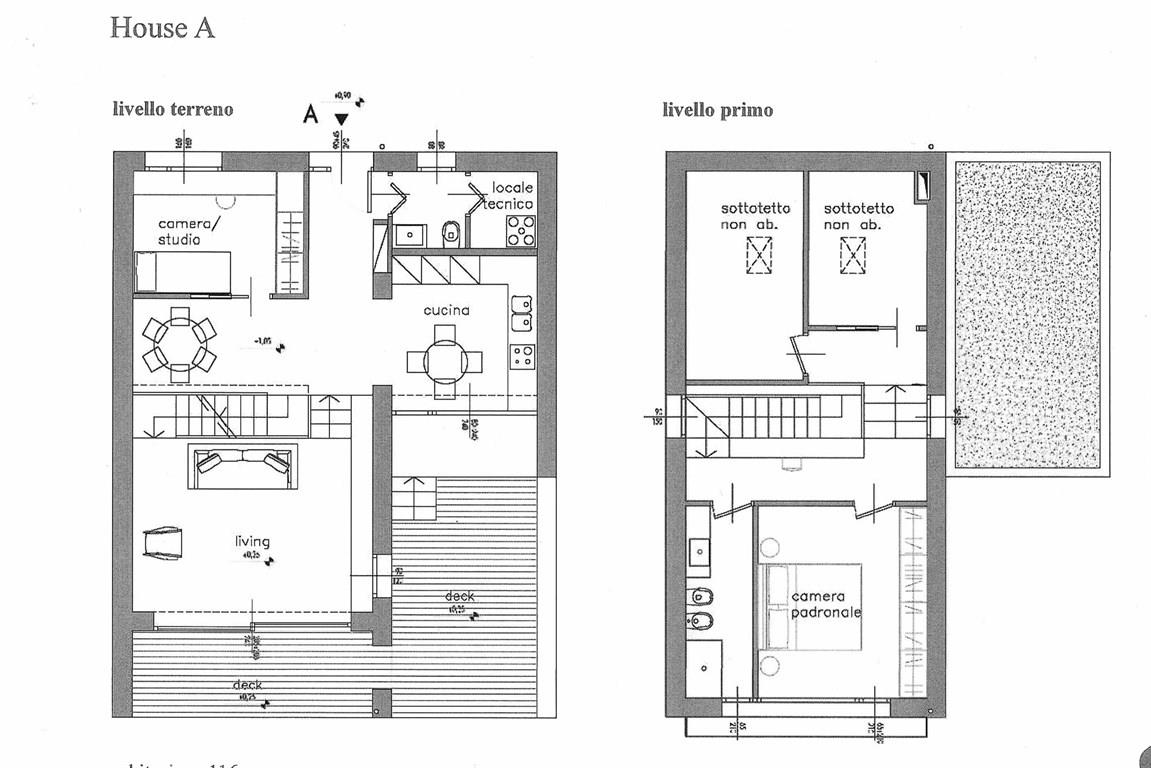
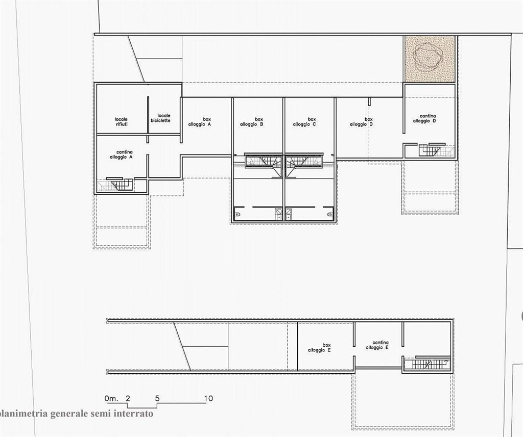
La villa singola in oggetto (tipo A) si sviluppa su due livelli: al piano terra (65 mq) troviamo una zona living molto luminosa con uscita sul portico esterno (mq. 35) ed area a verde orientata a Sud; cucina abitabile, una camera e bagno finestrato. Collegata con scala interna al primo piano (mq. 63) troviamo due camere, due locali accessori ed il bagno padronale. Completano l'immobile il piano interrato (mq. 90), facilmente accessibile dall'esterno con un comodo scivolo e dall'interno tramite scala, composto da un box doppio e zona taverna.
Con queste ville si è data priorità al benessere abitativo partendo dalla progettazione che prevede tutte le zone living orientate a SUD per assicurare il migliore irradiamento possibile con grandi superfici vetrate, che garantiscono la copertura calorica solare passiva degli ambienti, offrendo altresì la possibilità di vivere l'esterno col naturale prolungamento dal soggiorno al portico coperto. Ottimo capitolato di alto profilo visionabile in ufficio e possibilità di personalizzare gli spazi interni. € 507.000. Consegna prevista entro fine 2025.

CARATTERISTICHE

Riferimento:
804
Comune:
Meda
Zona:
Tipologia:
Villa
N. Locali:
5
Prezzo €:
507.000,00
Box:
Doppio
Mq. immobile:
189
Cucina:
Cucina a vista
N. camere / N. bagni:
2
/
2
Spese cond. annue €:
Arredamento:
Non Arredato
Piano:
Intero edificio di 1
Riscaldamento:
Autonomo
Stato:
In costruzione
Anno costruzione:
2025
Caratteristiche: Terrazzo 35 mq, Cantina 54 mq, Giardino di proprietà 44 mq, Condizionatore, Predisposizione allarme
Efficienza Energetica: Classe A+ Ipe 3,51 KWh/m²a

CONTATTI

Nome *
Cognome *
Email *
Telefono

Messaggio


Ai sensi e per gli effetti degli articoli 13 e 6 del Regolamento UE 2016/679, dichiaro di aver preso visione dell’informativa di Mediocasa Sas per il trattamento dei dati personali