Mediocasa Immobiliare

Seveso centro, complesso misto produttivo e residenziale.

LOCALIZZAZIONE IMMOBILE

DESCRIZIONE

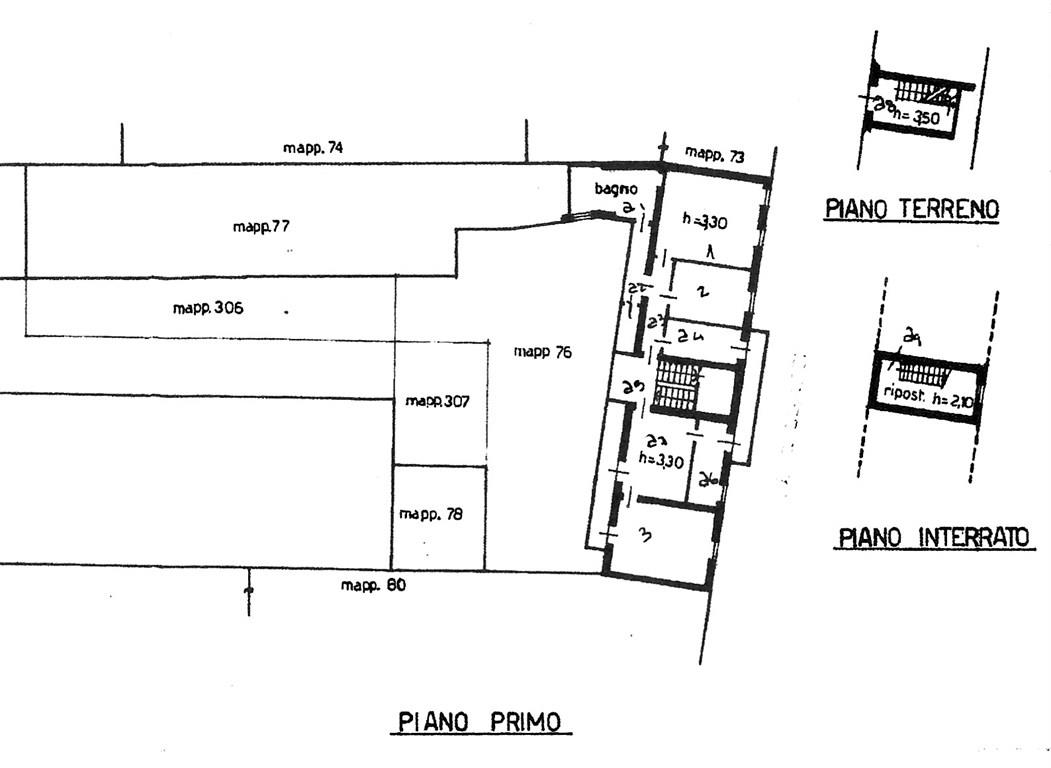
Seveso S. Pietro, posizione centrale, intero complesso immobiliare, composto da: al piano terra, un laboratorio di mq. 147 e altezza mt. 3,50, due locali deposito per mq. 74 totali, una autorimessa di mq. 23, un locale con cantina di mq. 28 ed infine n. 3 monolocali arredati di mq. 30 ciascuno (tutti e tre con regolare contratto di locazione per cui a reddito). Alcuni locali richiedono manutenzione mentre altri sono agibili subito.
Al primo piano troviamo due grandi appartamenti: il primo appartamento di mq. 164, in buone condizioni, termoautonomo, è composto da 4 locali oltre cucina, doppi servizi e balcone; il secondo appartamento di mq. 100, termoautonomo, completamente ristrutturato recentemente, è composto da 3 locali più servizi ed ha annesso un terrazzo di mq. 30. La proprietà ha un accesso indipendente ed è ideale per artigiani/commercianti che necessitano di laboratorio/magazzino con abitazione. Ottima posizione centrale, servita da infrastrutture a mt. 500 dalla stazione Trenord ed a mt. 900 dall'ingresso della Milano-Meda-Pedemontana. Richiesta € 500.000. APE - Classe G (292,86 Kwh/mq/anno).

CARATTERISTICHE

Riferimento:
808
Comune:
Seveso
Zona:
San Pietro
Tipologia:
Complesso Misto
N. Locali:
Prezzo €:
500.000,00
Box:
Doppio
Mq. immobile:
619,4
Cucina:
N. camere / N. bagni:
/
Spese cond. annue €:
Arredamento:
Piano:
Intero edificio di 1
Riscaldamento:
Autonomo
Stato:
Anno costruzione:
diversi
Caratteristiche: Terrazzi 30 mq, Balconi, Cantina 41 mq
Efficienza Energetica: Classe G Ipe 292,86 KWh/m²a
Prestazione energetica del fabbricato inverno estate

CONTATTI

Nome *
Cognome *
Email *
Telefono

Messaggio


Ai sensi e per gli effetti degli articoli 13 e 6 del Regolamento UE 2016/679, dichiaro di aver preso visione dell’informativa di Mediocasa Sas per il trattamento dei dati personali