Mediocasa Immobiliare

Negozio / Ufficio in Seveso centro

LOCALIZZAZIONE IMMOBILE

DESCRIZIONE

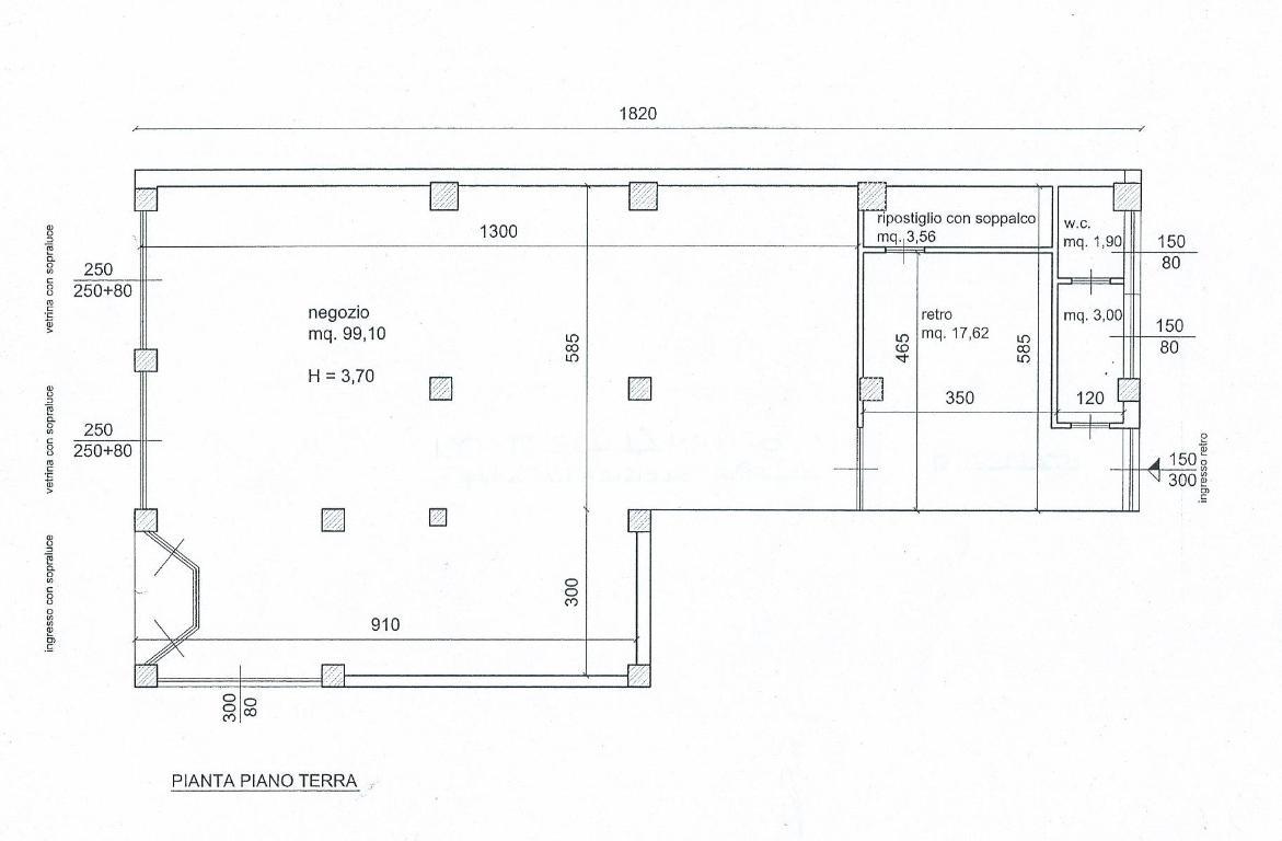
Seveso zona centrale, negozio/ufficio di mq. 125, piano terra con due vetrine, composto da: locale open-space in ordine di mq. 99, retro di mq. 26 con ripostiglio e bagno. Altezza locali mt. 3,70. Riscaldamento centralizzato: attualmente il negozio non ha radiatori, il retro invece è riscaldato. € 700/mese + € 110/mese di spese condominiali. Classe energetica G (77,62 KWh/mc/anno). Libero.

CARATTERISTICHE

Riferimento:
496
Comune:
Seveso
Zona:
centrale
Tipologia:
Negozio
N. Locali:
2
Prezzo €:
700,00 al mese
Box:
Mq. immobile:
125
Cucina:
N. camere / N. bagni:
/
1
Spese cond. annue €:
1.320,00
Arredamento:
Non Arredato
Piano:
Terra di 3
Riscaldamento:
Centralizzato
Stato:
Libero
Anno costruzione:
1970
Caratteristiche: Ascensore
Efficienza Energetica: Classe G Ipe 77,62 KWh/m³a

CONTATTI

Nome *
Cognome *
Email *
Telefono

Messaggio


Ai sensi e per gli effetti degli articoli 13 e 6 del Regolamento UE 2016/679, dichiaro di aver preso visione dell’informativa di Mediocasa Sas per il trattamento dei dati personali